Cấu tạo và nguyên lý hoạt động của thang máy

Trong thế giới hiện đại, nơi tốc độ và tiện nghi luôn được đặt lên hàng đầu, thang máy đã trở thành một phần không thể thiếu trong cuộc sống hàng ngày của chúng ta. Từ các tòa nhà cao tầng đến những căn hộ gia đình, thang máy không chỉ đơn thuần là phương tiện di chuyển mà còn là biểu tượng của sự phát triển và tiện nghi. Nhưng bạn đã bao giờ tự hỏi về cấu tạo phức tạp và nguyên lý hoạt động của thang máy? Hãy cùng Thang Máy Thuận Thành  khám phá những bí mật ẩn sau cánh cửa kim loại quen thuộc này.

1. Cấu tạo của thang máy

Thang máy hiện nay có hai loại chính: thang máy có phòng máythang máy không phòng máy. Cả hai loại đều có cấu tạo phức tạp với nhiều bộ phận khác nhau, tuy nhiên, chúng có một số điểm khác biệt đáng lưu ý.

1.1. Thang máy có phòng máy

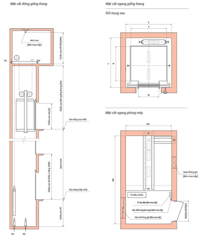
Sơ đồ tổng thể thang máy có phòng máy
Sơ đồ tổng thể thang máy có phòng máy

Thang máy có phòng máy là loại thang được vận hành với một phòng máy riêng biệt đặt trên cùng của tòa nhà, nơi chứa máy kéo và tủ điện. Các thành phần chính của thang máy có phòng máy bao gồm:

  • Động cơ máy kéo: Thường được lắp đặt trong phòng máy hoặc dưới hố thang. Chức năng chính của động cơ là kéo dẫn động, giảm tốc, làm quay puli – kéo cabin lên, xuống. Hệ thống phanh được gắn trên động cơ giúp quá trình dừng tầng trở nên nhịp nhàng và êm ái. Giúp cabin dừng đứng tầng và chính xác hơn.
  • Tủ điều khiển: Có thể coi đây là “bộ não” của thang máy. Điều khiển hoạt động của thang máy, bao gồm cả hệ thống an toàn.
  • Cabin: Khoang vận chuyển hàng khách hoặc hàng hóa
  • Ray dẫn hướng: Dẫn hướng cho cabin và đối trọng di chuyển theo chiều thẳng đứng.
  • Đối trọng: Cân bằng khối lượng cabin để giảm tải cho máy kéo.
  • Cáp tải: Cáp nối cabin và đối trọng để truyền lực dẫn động của máy kéo đến cả cabin lẫn đối trọng
  • Bộ giảm chấn: Thiết bị an toàn để dừng cabin hoặc đối trọng khi chúng di chuyển quá giới hạn cho phép.
  • Thắng cơ: Là thiết bị khống chế hoặc kìm hãm thang máy khi có dấu hiệu chạy quá tốc. Đây là thiết bị bắt buộc phải có để đảm bảo an toàn cho người dùng thang máy.
  • Puly: Puli để treo cabin và đối trọng bằng cáp tải
  • Bộ chống quá tốc: Phát hiện khi cabin di chuyển quá tốc độ và kích hoạt thắng cơ để dừng thang máy.

1.2. Thang máy không phòng máy

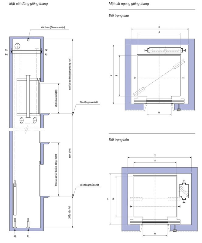
Sơ đồ tổng thể thang máy không phòng máy
Sơ đồ tổng thể thang máy không phòng máy

Thang máy không phòng máy là loại thang không cần sử dụng phòng máy, giúp tiết kiệm không gian và chi phí xây dựng. Về cấu tạo của thang máy không phòng máy cũng giống thang máy có phòng máy. Điểm khác nhau duy nhất chính là bộ động cơ và một số thiết bị khác.

  • Động cơ: Thang máy không phòng máy sử dụng động cơ không hộp số. Đông cơ sử dụng công nghệ nam châm vĩnh cửu nên tránh được việc ô nhiễm môi trường, tiết kiệm diện tích và điện năng. Chức năng chính của động cơ là giúp di chuyển cabin lên xuống.
  • Khung an toàn trên đầu cabin: Đảm bảo an toàn cho người làm việc khi bảo trì hoặc kiểm tra trên đầu cabin.
  • Hộp vận hành HIP: Thiết bị vận hành cabin trong quá trình bảo trì hoặc kiểm tra, thường lắp đặt ở tầng trên cùng.
  • Bao che đối trọng: Bảo vệ để người làm việc không tiếp xúc với đối trọng khi bảo trì hoặc kiểm tra trong hố thang máy.

2. Nguyên lý hoạt động của thang máy

2.1. Vận hành cơ bản

Khi sử dụng thang máy, hành khách cần nhấn nút gọi tầng và chờ cabin đến. Sau khi vào cabin, hành khách chọn tầng muốn đến bằng cách nhấn nút trên bảng điều khiển. Thang máy sẽ di chuyển cabin đến tầng được chọn, và khi đến nơi, cửa sẽ mở để hành khách ra ngoài.

2.2. Nguyên lý hoạt động khi mất điện

Cấu tạo và nguyên lý hoạt động của thang máy

Trong trường hợp mất điện, thang máy được trang bị hệ thống cứu hộ tự động. Cabin sẽ tự động di chuyển đến tầng gần nhất bằng nguồn điện từ ắc quy và mở cửa để hành khách có thể thoát ra ngoài an toàn. Đèn chiếu sáng khẩn cấp trong cabin sẽ được bật để đảm bảo ánh sáng.

2.3. Nguyên lý hoạt động khi xảy ra hỏa hoạn

Khi xảy ra hỏa hoạn, hệ thống thang máy được trang bị chức năng hoạt động trong trường hợp khẩn cấp sẽ nhận tín hiệu từ hệ thống báo cháy của tòa nhà. Các cabin sẽ tự động di chuyển đến tầng sơ tán đã được quy định trước để hành khách có thể thoát ra an toàn.

3. Kết luận

Thang máy không chỉ là công nghệ giúp chúng ta di chuyển nhanh chóng và tiện lợi mà còn là một phần quan trọng trong kiến trúc hiện đại, đảm bảo an toàn và hiệu suất cho người dùng. Hiểu rõ về cấu tạo và nguyên lý hoạt động của thang máy không chỉ giúp bạn chọn được thiết bị phù hợp mà còn giúp tối ưu hóa việc sử dụng và bảo dưỡng. Hãy luôn chú ý đến các yếu tố an toàn để thang máy của bạn vận hành một cách hiệu quả và bền bỉ theo thời gian.


Nếu quý khách có nhu cầu lắp đặt thang máy tại Bắc Ninh hoặc quan tâm đến các sản phẩm thang máy như: thang máy tải khách, thang kính khung thép, thang máy quan sát, thang máy tải thực phẩm, thang máy tải hàng, thang máy bệnh viện, thang máy chở ô tô, thang máy homelift hãy liên hệ ngay với chúng tôi. Thang Máy Thuận Thành cam kết sẽ mang những sản phẩm và dịch vụ tốt nhất đến khách hàng.

“Nâng tầm thương hiệu, vững bước tương lai” – Đó là khẩu hiệu và mục tiêu của Thang Máy Thuận Thành!

CÔNG TY CỔ PHẦN THANG MÁY THUẬN THÀNH – CHUYÊN LẮP ĐẶT THANG MÁY TẠI BẮC NINH

Địa chỉ: Thôn Bùi Xá, Xã Ngũ Thái, Huyện Thuận Thành, Tỉnh Bắc Ninh

Hotline: 0972.200.110

Email: thangmayonelift@gmail.com

Facebook